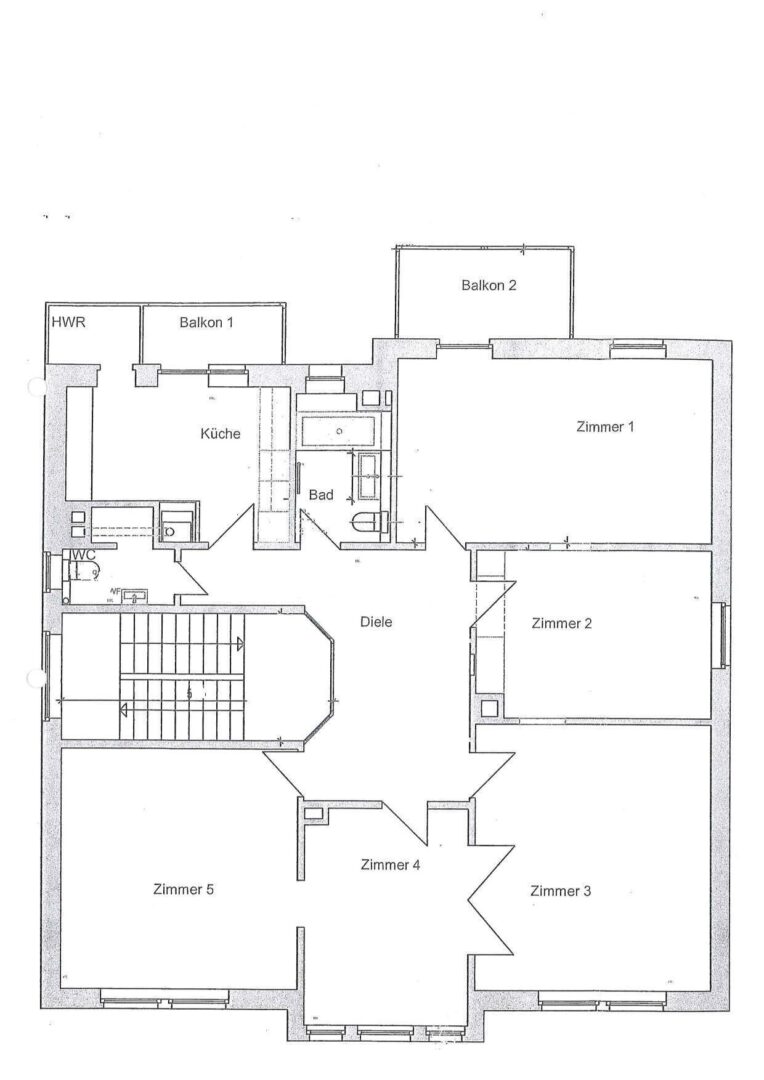
Im dritten Obergeschoss eines beeindruckenden, denkmalgeschützten Altbaus erwartet Sie diese außergewöhnliche 5-Zimmer-Wohnung, die klassische Eleganz mit zeitgemäßem Wohnkomfort auf harmonische Weise verbindet. Hohe Decken, stilvolle Flügeltüren und großzügige Raumproportionen verleihen der Wohnung ein einzigartiges Ambiente und unterstreichen ihren historischen Charme.
Der großzügige Wohnbereich geht fließend in das angrenzende Esszimmer über, das sich bei Bedarf durch elegante Flügeltüren abtrennen lässt. Dadurch entsteht ein flexibles Raumkonzept, das sowohl gesellige Zusammenkünfte als auch ruhige Rückzugsmomente ermöglicht.
Drei geräumige Schlafzimmer bieten vielfältige Nutzungsmöglichkeiten – ob als Schlaf-, Arbeits- oder Gästezimmer. Ein besonderes Highlight ist die charmante Loggia, die von einem der Zimmer aus zugänglich ist und einen ruhigen Rückzugsort mitten im urbanen Umfeld schafft.
Die moderne Einbauküche überzeugt durch ihre hochwertige Ausstattung und verfügt über einen praktischen Abstellraum. Von hier aus gelangen Sie direkt auf den sonnigen Balkon, der sich ideal für ein Frühstück im Freien oder einen entspannten Tagesausklang eignet.
Das helle Tageslichtbad ist mit Badewanne, Waschtisch und WC ausgestattet und lädt zum Entspannen ein. Ergänzend steht ein zweites Badezimmer mit Dusche, Waschbecken und WC zur Verfügung – besonders komfortabel für Familien oder Besucher.
Ein Carport-Stellplatz befindet sich in ca. 350 m Entfernung vom Objekt und kann bei Bedarf separat angemietet werden.
Diese besondere Wohnung vereint stilvolles Wohnen mit urbanem Lebensgefühl und richtet sich an Menschen, die Wert auf Charakter, Großzügigkeit und Atmosphäre legen.
Haben wir Ihr Interesse geweckt?
Wir freuen uns auf Ihre Anfrage und darauf, Ihnen diese Wohnung bei einem persönlichen Besichtigungstermin vorstellen zu dürfen.
