Diese exklusive Dachgeschoss-Maisonette verbindet modernes Wohnkonzept mit einem außergewöhnlich großzügigen Raumgefühl, viel Tageslicht und einer beeindruckenden Aussicht. Auf zwei Ebenen genießen Sie hohen Wohnkomfort, eine hochwertige Ausstattung sowie attraktive Außenflächen.
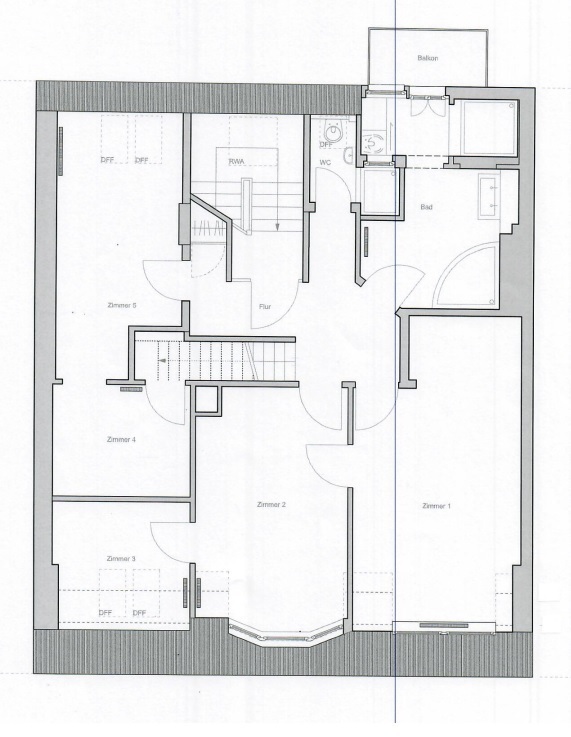
Im unteren Wohnbereich stehen drei gut geschnittene Schlafzimmer zur Verfügung, von denen zwei über ein direkt angeschlossenes Ankleide- bzw. Arbeitszimmer verfügen. Ein elegantes Tageslichtbad mit Badewanne, Dusche und WC sorgt für entspannte Wohlfühlmomente. Ergänzt wird diese Ebene durch ein zusätzliches Duschbad sowie den Zugang zu einem kleinen Balkon, der den Wohnraum ins Freie erweitert.
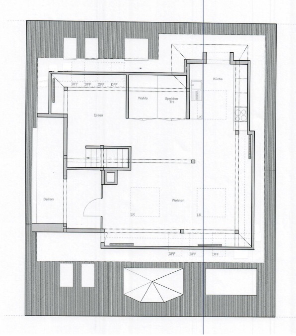
Das obere Geschoss bildet das Herzstück der Wohnung: Die offen gestaltete Küche geht fließend in den großzügigen Wohn- und Essbereich über und schafft eine einladende Atmosphäre. Von hier aus erreichen Sie die weitläufige, teilweise überdachte Dachterrasse – der perfekte Ort für laue Sommerabende, entspannte Stunden oder gesellige Treffen.
Die Wohnung überzeugt durch ihren modernen Grundriss, lichtdurchflutete Räume und ein offenes Wohnkonzept mit repräsentativem Charakter. Dachterrasse und Balkon bieten wertvolle Rückzugsorte im Freien, während die hochwertige Ausstattung und die durchdachte Raumaufteilung höchsten Ansprüchen gerecht werden.
Ideal für Paare, kleine Familien oder anspruchsvolle Genießer, die großzügiges Wohnen mit Stil und dem gewissen Etwas suchen.
Haben wir Ihr Interesse geweckt? Wir freuen uns auf Ihre Anfrage!
